Casa semi indipendente Via Beltramone, Barge

Prezzo: € 8.000,00 Casa semi indipendente in Vendita
Informazioni principali
Vendita
Casa semi indipendente
€ 8.000,00
170 m2
Via Beltramone, Barge
G
601.6 kWh/m2 anno
Descrizione

BARGE - VIA BELTRAMONE

Cerchi un affare super interessante?
Desideri un angolo di pace immerso nel verde, ma in zona residenziale, non lontano dai servizi?

Leggi il prossimo annuncio immobiliare, ne rimarrai colpito!

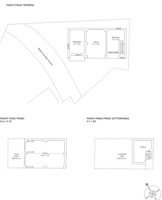
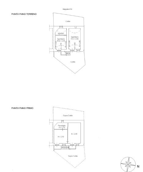
Gruppo Monviso Immobiliare propone una casa semi- indipendente, libera su tre lati, elevata a due piani fuori terra. L'immobile è stato abitato fino al 2019 ed ora è libero, pronto per essere ristrutturato. Il tetto della proprietà è in pietra, la struttura è sana, ma certamente tutti gli impianti vanno rifatti ed attualmente la casa è priva di impianto di riscaldamento. In passato si utilizzavano stufe a legna e putagè. Il piano terra offre due locali sgombero, in passato usati come cantina, vecchi depositi. Il livello superiore, collegato tramite scala esterna, presenta due locali da riattare. La casa gode di un piccolo spazio frontale, un patio dove pranzare all'aria aperta o dove rilassarsi nelle giornate estive leggendo un buon libro. Non finisce qui: sul retro della casa, invece, troviamo un box auto ( C/6) di 39 mq, spazioso ed ideale per ricoverare mezzi agricoli o un'autovettura. Troviamo ancora un piccolo servizio, ubicato a lato.
A fianco del corpo principale, quindi frontalmente al box auto, infine, trova spazio un fabbricato accatastato ad uso magazzino (C/2) di 130 mq. Esso presenta il tetto in tegole ed è stato edificato a fine anni '90 circa. Può essere utilizzato in futuro come seconda unità abitativa, post cambio di destinazione d'uso e ristrutturazione.
Sul retro di quest'ultimo trovano spazio 360 mq di area verde pianeggiante da utilizzare a piacere. La borgata è servita da rete elettrica. L'approvvigionamento idrico è di tipo consortile con fonte sorgiva. Idem la strada viene gestita mediante un consorzio e le spese di gestione annue son irrisorie, circa 100 euro.
Uno sterrato di circa 400 metri conduce alla borgata dove trovano spazio altre graziose unità immobiliari, un paradiso a portata di mano!


Il prezzo è sicuramente super, da non perdere un acquisto così!

Metratura, prezzo e posizione fanno di questa proprietà un investimento garantito!

NOVITÀ DEL MOMENTO!
PER QUALSIASI INFORMAZIONE NON ESITATE A CONTATTARCI (ANCHE SU WHATSAPP AL NUMERO 3515477536).
SIAMO DISPONIBILI A FAR VISIONARE L'IMMOBILE DAL LUNEDÌ ALLA DOMENICA.

Seguiteci sui social:
Facebook (https://www.facebook.com/GruppoMonvisoImmobiliare)
Instagram (https://www.instagram.com/gruppomonvisoimmobiliare)



Altre informazioni
1
1
2
Abitabile
Assente
Assente
Assente
2
NO
SI
NO
NO
NO
NO
NO
NO
NO
Doppio
SI
NO
NO
NO
NO
Tre
NO
Nord, Est, Ovest
SI
SI
Su più livelli
2
1900
Da ristrutturare
Civile
Libero
Vetro / Legno
Agenzia di riferimento
Barge

Viale G. Mazzini 34 - 12032
Barge (CN)

Tel: 0175/063608

Contatta
Ho letto e accetto l'informativa sulla privacy.